
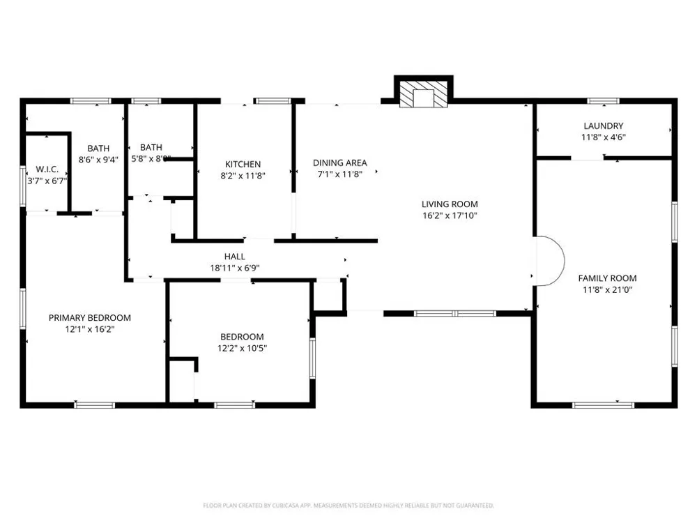
A classic all brick ranch with timeless character in the heart of Winder! Built in 1967, this 3 bedroom, 2 bath home offers 1,480 square feet of well proportioned living space with original character and solid bones. Includes a flexible third bedroom, office, or bonus room with abundant natural light and adjacent laundry and storage space. The kitchen and bath retain their original charm, including the original oven from 1967...they do not make them like they used to. The living and dining areas flow together and are anchored by a masonry, wood burning fireplace and large windows that fill the home with natural light. Sliding glass doors connect the interior to the backyard, creating an effortless extension of living space and easy access to the outdoors. Original oak hardwood floors are found throughout most of the home. The flat, generous lot has a fenced backyard. Major systems have been thoughtfully maintained, including a newer HVAC system, hot water heater, and roof. You will find a mix of original wood windows and updated vinyl insulated double pane windows. Full of potential, this home is move-in ready with room to personalize. Conveniently located near downtown Winder. Do not miss the opportunity to make this one your own!
Listings identified with the FMLS IDX logo come from FMLS and are held by brokerage firms other than the owner of this website. The listing brokerage is identified in any listing details. Information is deemed reliable but is not guaranteed. If you believe any FMLS listing contains material that infringes your copyrighted work please click here to review our DMCA policy and learn how to submit a takedown request. © 2022 First Multiple Listing Service, Inc.
Last Updated: . Source: FMLS
Provided By
Listing Agent: Amanda Partee (#APMANDERS)
Listing Office: Chapman Hall Professionals (#CHRP01)

Get an estimate on monthly payments on this property.
Note: The results shown are estimates only and do not include all factors. Speak with a licensed agent or loan provider for exact details. This tool is sourced from CloseHack.